Outils pour utilisateurs

Outils du site


plans:presentation

à jour le 22/11/2024

Présentation détaillée des plans

Plans et instructions d'accès au 21 Villa Domas, comment s'y rendre ?

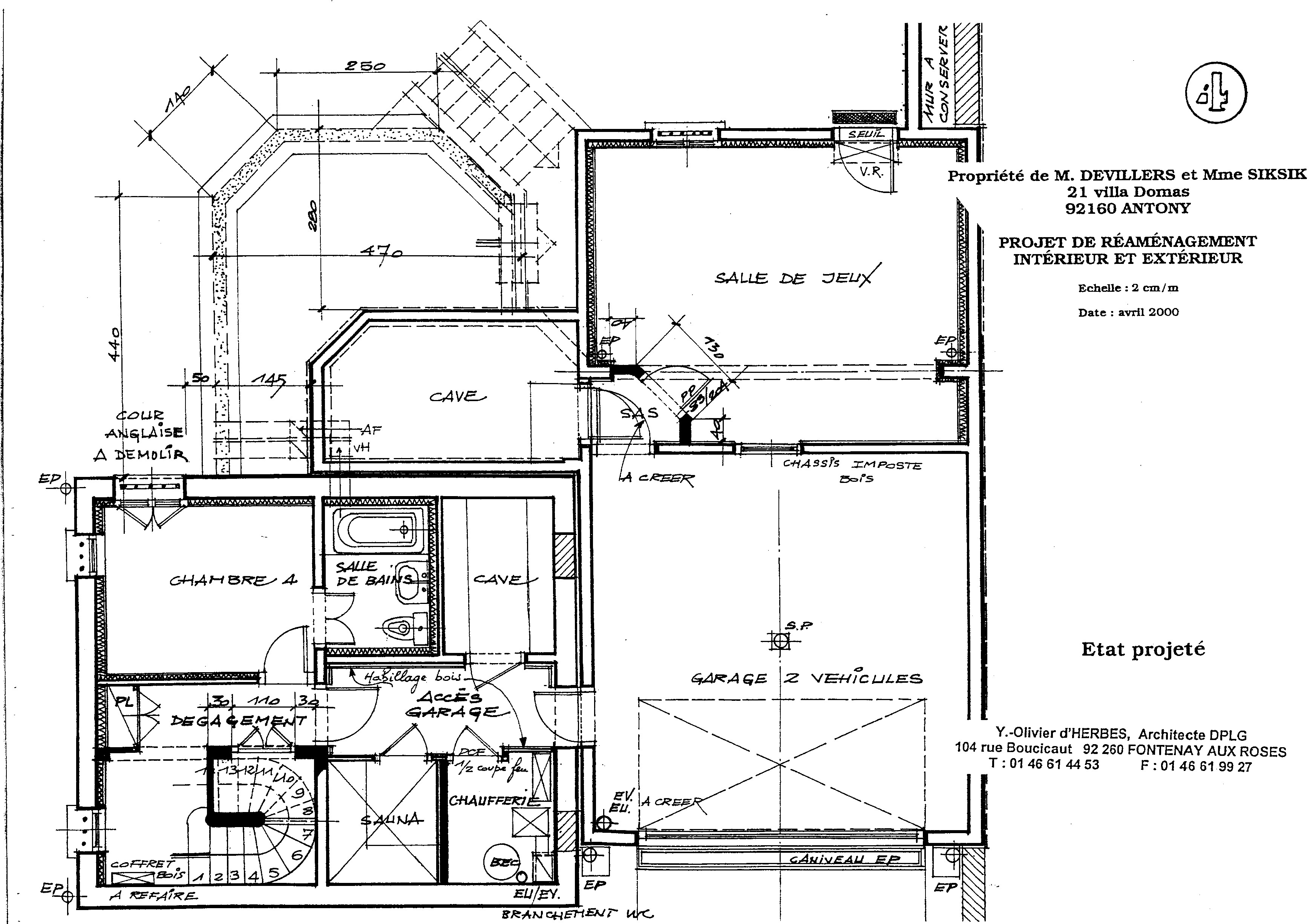
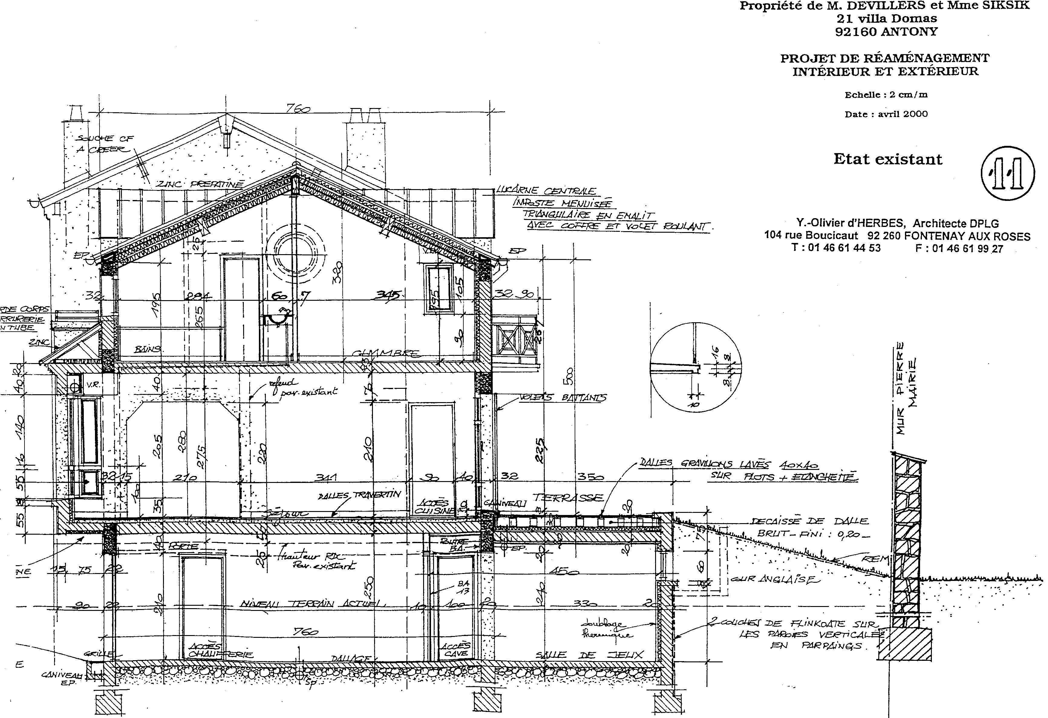
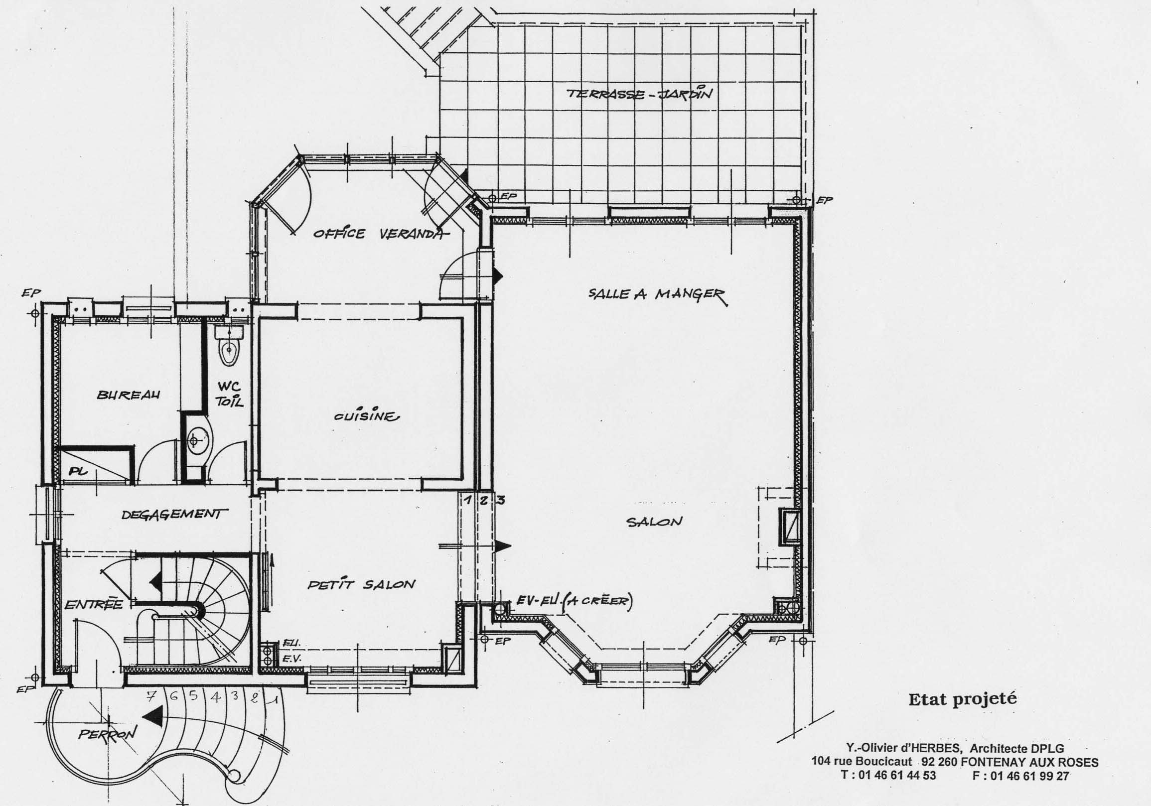
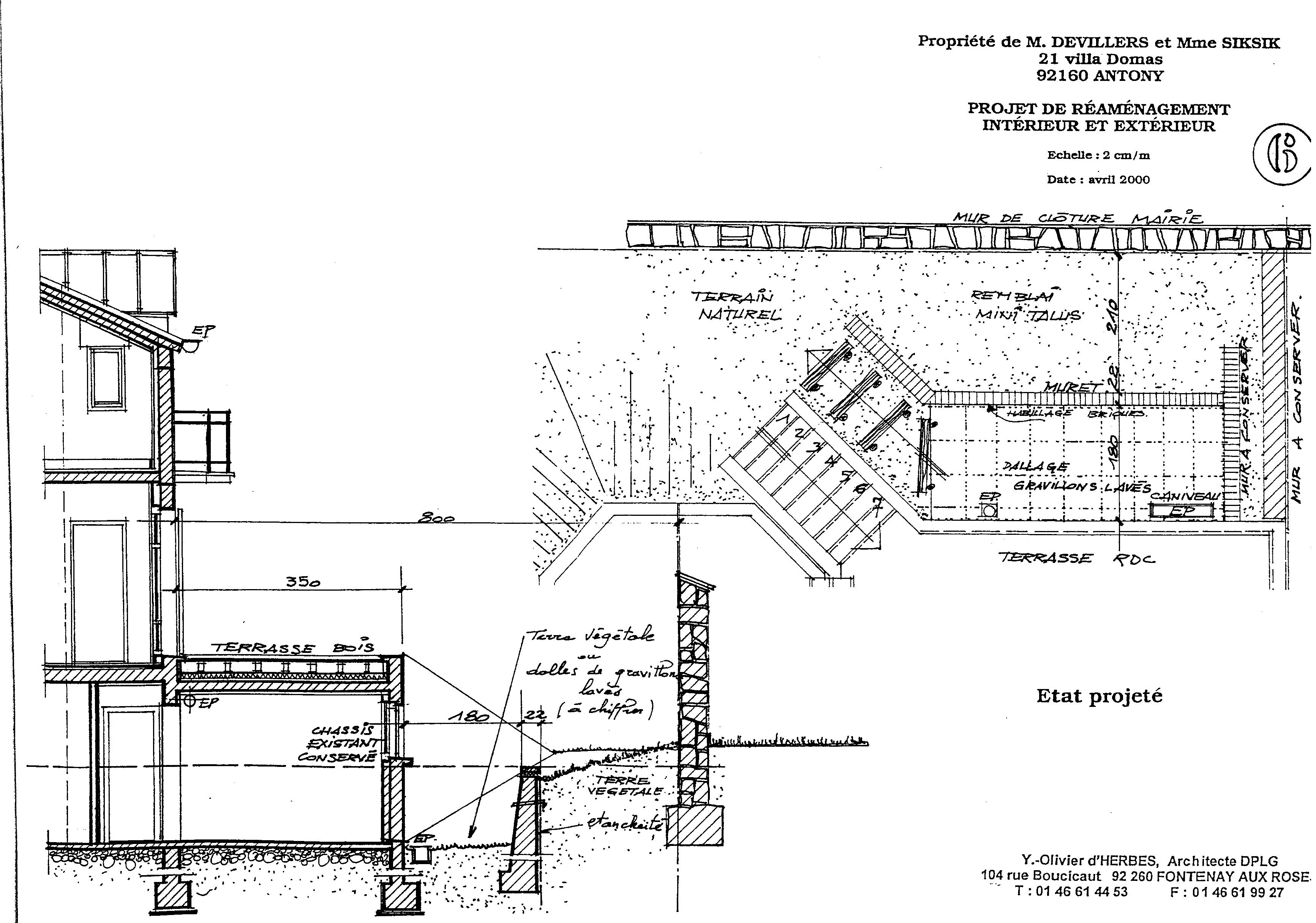
Des plans d'architecte établis en 2000, marqués “état existant”, ou antérieurement ont été fournis par l'architexte, Olivier D'herbes; ils peuvent être marqués “projet de réaménagement”. Les versions tif ont été scannées en décembre 2000, les version jpeg en janvier 2001.
En utilisant ces plans comme fond, j'ai fabriqué, avec le visio de l'époque, des plans pdf au trait, cotés
J'ai aussi fabriqué des plans/schémas de détails de la chaufferie, du tableau de brassage …

Plans d'architecte

Voir D:\Me\Maison\Plans\copie plan

Plans au trait

Surfaces

Schémas

Très nombreuses photos des détails de la chaufferie dans D:\Me\Maison\Plans\Chaufferie
Très nombreuses photos du cablage Pouyet de distribution du réseau sur paire 4/10 (abandonné) dans D:\Me\Maison\Réseau\cablage pouyet et dans D:\Me\Maison\Réseau\cablage pouyet\Tableau
Des photos des dessertes et tableaux électriques dans D:\Me\Maison\Electricité\installation

plans/presentation.txt · Dernière modification: 2024/11/26 14:12 par yves